
Das Haustürsystem D 92 UD zeichnet sich durch eine intuitiv erkennbare Bedienbarkeit und ein adaptives Design aus. Mit seinem modularen Aufbau bietet das System eine Vielzahl von Gestaltungsvarianten. Optik und Gebrauchseigenschaften können leicht an veränderte Fähigkeiten oder neue Anforderungen der Benutzer angepasst werden. Auf die hervorragenden Leistungseigenschaften sowie die funktionelle Bedienbarkeit wird dabei kein Einfluss genommen.
heroal bietet bei seinem Haustürsystem D 92 UD eine für den Aluminiumbereich neuartige Füllungsbefestigung an. Bei dieser Variante besteht die Möglichkeit, die vorgefertigte Füllung durch Fügen (Klipsen) in den Flügel zu befestigen. Dabei besteht zwischen der nachgewiesenen Sicherheit und dem gewohnten Komfort kein Widerspruch. Durch die unterschiedlichen Möglichkeiten der heroal Füllungsbefestigungen können maximale Flügelgrößen gefertigt werden. Die Erweiterung des Türsystems heroal D 92 UD durch eine Profilkonstruktion für diese Art der Füllungsbefestigung bietet Vorteile für Verarbeiter. Einfachste Montage, auch auf der Baustelle, reversibel für Designveränderung und zeitsparende Verarbeitung des gesamten Systems sind nur einige Aspekte der neuen Konstruktion.

Durch die Profilerweiterung zur Anbindung von Seitenteilen des D 92 UD Haustürsystems eröffnet heroal Verarbeitern neue Möglichkeiten. Je nach Wunsch können Seitenteile mit umlaufenden Rahmen oder mit angekoppelten Seitenteilen gefertigt werden. Es ergeben sich dadurch neue Möglichkeiten der Designgestaltung von Seitenteilen, z. B. gleiche Optik im Flügel- wie auch im Seitenteil. Der Verarbeiter kann optional die für sich ideale Variation der Verarbeitung wählen. heroal bietet bei der neuen Seitenteilgestaltung gewohnt kurze und einfache Verarbeitungszeiten.
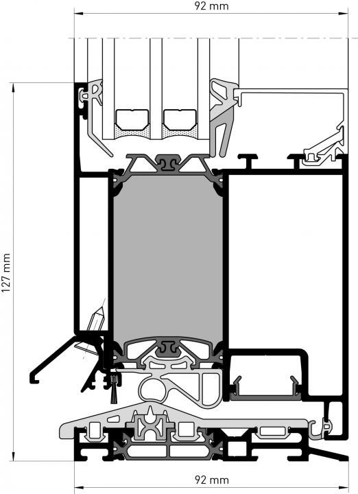
Profilbautiefe [mm]
Rahmenprofile 92
Flügelprofile 78 - 92
Sprossenprofile 92
Profilansichtsbreite [mm]
Rahmenprofile 85 - 120
Flügelprofile 56 - 85
Sprossenprofile 94 - 120
Systemeigenschaften
max. Glas-/Füllungsstärke [mm] 92
max. Flügelgewichte [kg] 180
max. Flügelbreiten [mm] 1.400
max. Flügelhöhen [mm] 2.500

heroal bietet mit dem Haustürsystem heroal D 72 eine einzigartige Systemvielfalt. Beste Materialien, höchste Funktionalität, anspruchsvolle Designvarianten und maximale Flexibilität sind die solide Basis für stets individuell und exklusiv gefertigte Einzelstücke. heroal Haustürsysteme bieten größtmögliche Vielfalt für eine Vielzahl von Füllungsarten und durchdachte Systemlösungen für alle Einbausituationen im Neubau oder in der Renovierung, ob exklusiv und modern oder zeitlos elegant in moderner und klassischer Optik. Neben den zahlreichen Gestaltungsmöglichkeiten wird eine hohe standardmäßige Einbruchhemmung bis RC 3 garantiert.


Profilbautiefe [mm]
Rahmenprofile 50 - 250
Flügelprofile 72
Sprossenprofile 72
Profilansichtsbreite [mm]
Rahmenprofile 50 - 250
Flügelprofile 70 - 124
Sprossenprofile 74 - 254
Systemeigenschaften
Glas-/Füllungsstärke [mm] 52
max. Flügelgewichte [kg] 180
max. Flügelbreiten [mm] 1.400
max. Flügelhöhen [mm] 2.500

Das heroal Türsystem heroal D 65 bietet wirtschaftliche Lösungen für nach innen und nach außen zu öffnende Türen inklusive Automatiktüranlagen und Fluchttüren. Die 3-Kammer-Profile bieten mit den bewährten Systembeschlägen in Kombination mit den heroal Systemkomponenten bestmögliche Systemsicherheit. Das heroal Türsystem heroal D 65 erfüllt die höchsten Ansprüche im Hinblick auf Bedienkomfort und Einbruchhemmung.




Profilbautiefe [mm]
Rahmenprofile 92
Flügelprofile 78 - 92
Sprossenprofile 92
Profilansichtsbreite [mm]
Rahmenprofile 85 - 120
Flügelprofile 56 - 85
Sprossenprofile 94 - 120
Systemeigenschaften
max. Glas-/Füllungsstärke [mm] 92
max. Flügelgewichte [kg] 180
max. Flügelbreiten [mm] 1.400
max. Flügelhöhen [mm] 2.500

Die Haustüre spiegelt den Charakter Ihres Hauses. Jeden Besucher den Sie erwarten, wird Ihre Haustürschwelle betreten. Achten Sie daher auf Wertigkeit, Funktionalität, Sicherheit und Qualität. Die Haustüre bietet Ihnen alles von der Basisausführung bis hin zur Premiumhaustüre.
Dieses gilt sowohl für die Altbausanierung, wie auch im Neubau. Die Systembautiefe von 82 mm ermöglicht einen großen Spielraum bezüglich der einzusetzenden bzw. aufzusetzenden Füllungen.
Der Flügelaufschlag mit drei Anschlagdichtungen bietet Ihnen eine optimale Wärmedämmung. Auch dieses System zeichnet sich durch Stabilität, Belastbarkeit, wie auch vielfältige farbliche Gestaltungsmöglichkeiten aus.

ADRESSE
Industrievertretung Alexander Arns
Hüttenbruchstr. 3-5
57482 Wenden-Altenhof
KONTAKT
Telefon +49 (0) 2762 41999-0
Fax +49 (0) 2762 41999-20
Mail info(at)modulbau-fenster.de